数据
介绍

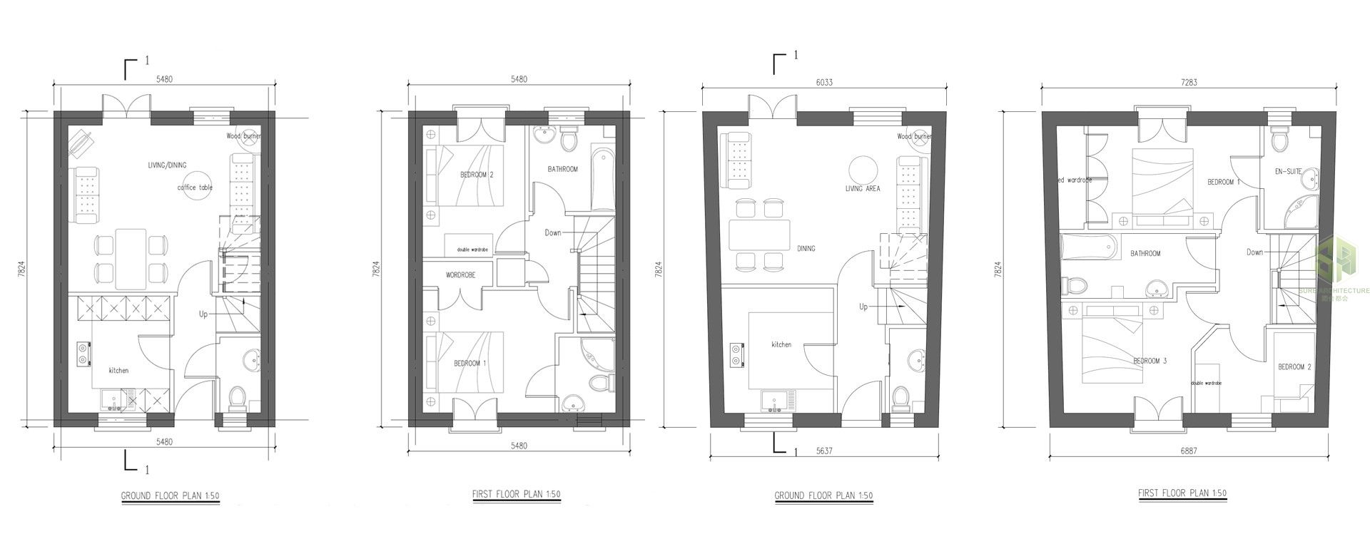
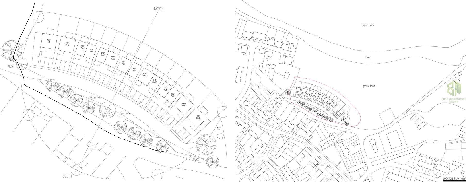
Allia Crescent 是一个位于英国彼得伯勒的前瞻性住宅开发项目,共包含14套零碳住宅,包括独栋与双拼式住宅单元。本项目旨在实现高标准的环境性能,通过可持续的设计理念,打造兼具舒适性与美学品质的现代住宅社区。

本项目以低碳设计为核心,采用多种被动式设计策略,如最佳朝向布置、自然通风及高效保温,以最大程度降低建筑能耗。屋顶配置太阳能光伏板,实现现场可再生能源生产,显著减少运营期间的碳排放。所有建筑材料均优选可持续来源,包括木材饰面、白色抹灰外墙以及低辐射双层玻璃窗,全面提升建筑节能性能,同时体现简洁现代的建筑风格。

总体规划采用柔和曲线布局,充分利用地块特性,为每户住宅提供良好视野、私密性与采光条件。景观设计强调开放、友好的社区氛围,营造具有辨识度的街道界面与公共空间体验。

Allia Crescent 项目树立了零碳住宅开发的典范,展现了如何通过周密的设计、先进技术与环保材料的协同融合,实现高质量、可持续的未来居住环境。